top of page
Clients can only be successful when we unite
Economic Success + Sustainable Solutions
Architectural Firm Office
Location
Client
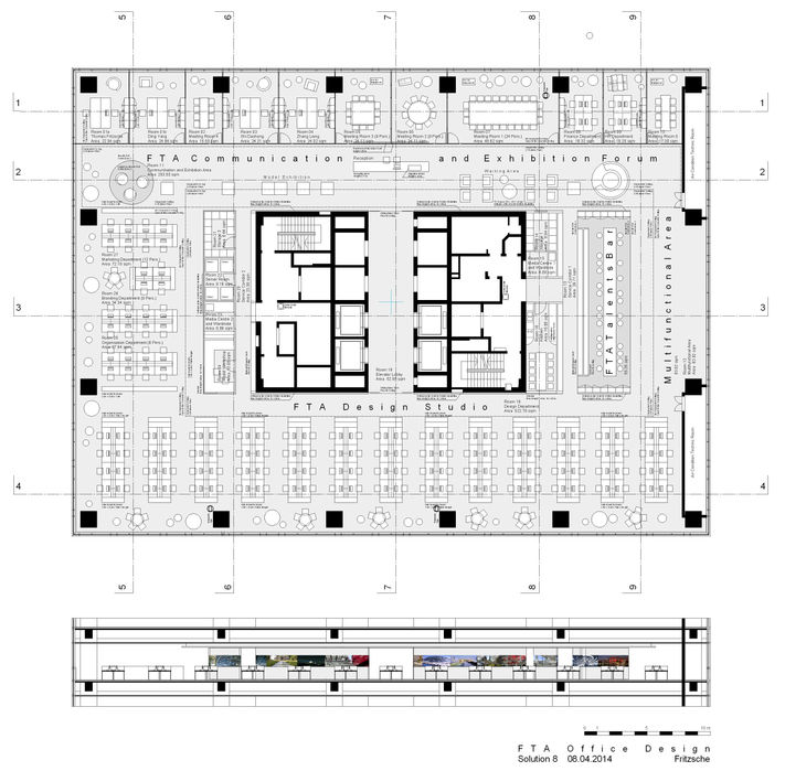
Functions
BUA
Service
Cooperator
Timeline
Shanghai
China
TFA / FTA
Open Office Area
Office Rooms
Meeting Rooms
Library
Pantry
2,000 sq m
Interior Design
EXH Design Shanghai
2013 Design
2014 Completion
bottom of page









